 
			 
				Nella tranquilla zona di La Salute di Livenza, villa a schiera in vendita. 
Si sviluppa su più livelli e offre ampi locali luminosi adatti a più esigenze familiari. 
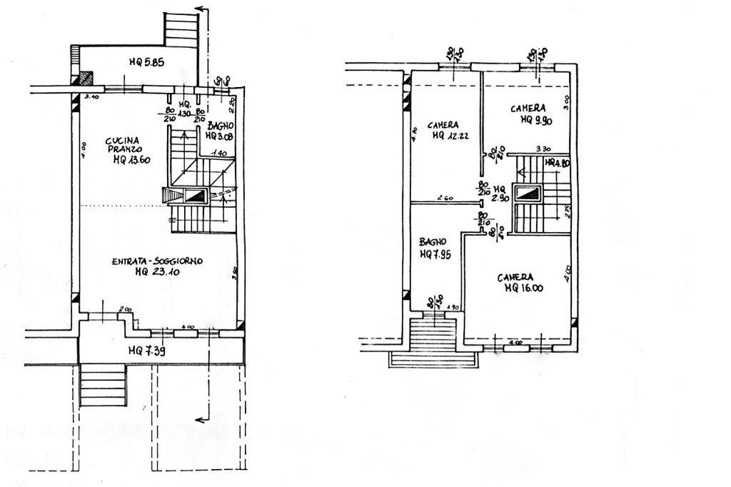
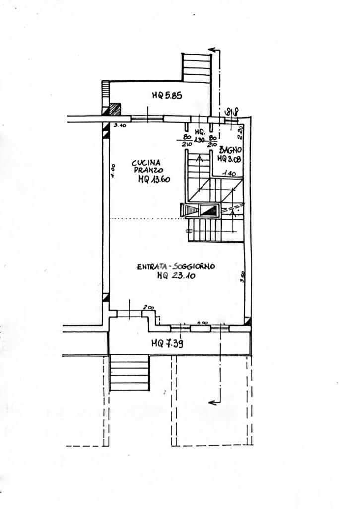
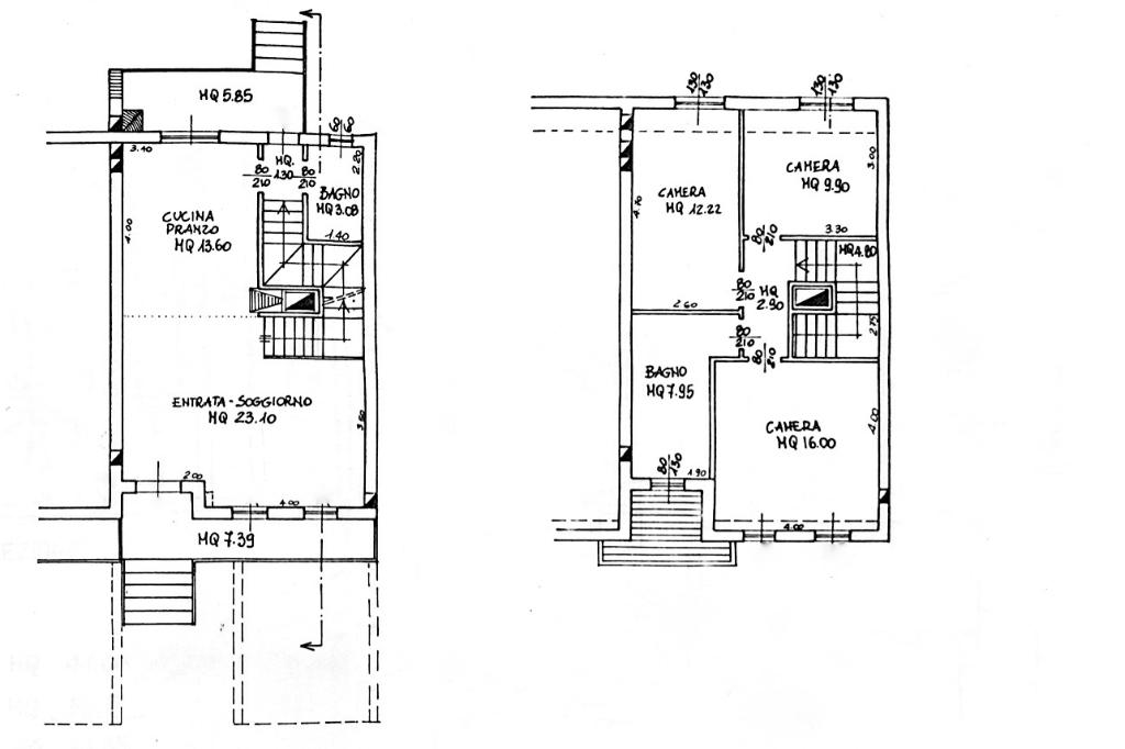
La villa dispone di due entrate: tramite l'entrata principale si accede all'ampio soggiorno, alla cucina abitabile con sala da pranzo e a un bagno finestrato.  
La zona notte è composta da due camere matrimoniali, una singola e un bagno con box doccia.
Dal piano terra tramite delle scale interne accediamo al seminterrato caratterizzato da un garage, con la possibilità di inserire un'auto e altri mezzi di piccole dimensioni; adiacente troviamo la zona caldaia e una taverna.  
Inoltre, è dotato di riscaldamento autonomo, di split con pompa di calore nella zona giorno e di spazi esterni che comprendono due terrazzi e un giardino privato, quest'ultimi arricchiscono ulteriormente la proprietà e rendono ancora più accogliente l'abitazione.
Questa villa rappresenta un'opportunità interessante per chi cerca una residenza accogliente e ben collegata, in una zona che coniuga la serenità della vita di paese con la vicinanza ai principali servizi a pochi minuti da una delle città più belle del Veneto. 
 Immobile valutato con T·Valuta
Immobile valutato con T·Valuta
								Prezzo ridotto di €1 (8%%)
Ti interessa visionare l'immobile?