Villa singola in vendita

Caorle, Corso G. Chiggiato - Levante
€ 960.000
4 locali 4 locali
189 Mq 189 Mq
2 bagni 2 bagni

Villa singola in vendita

Caorle, Corso G. Chiggiato - Levante

Descrizione annuncio

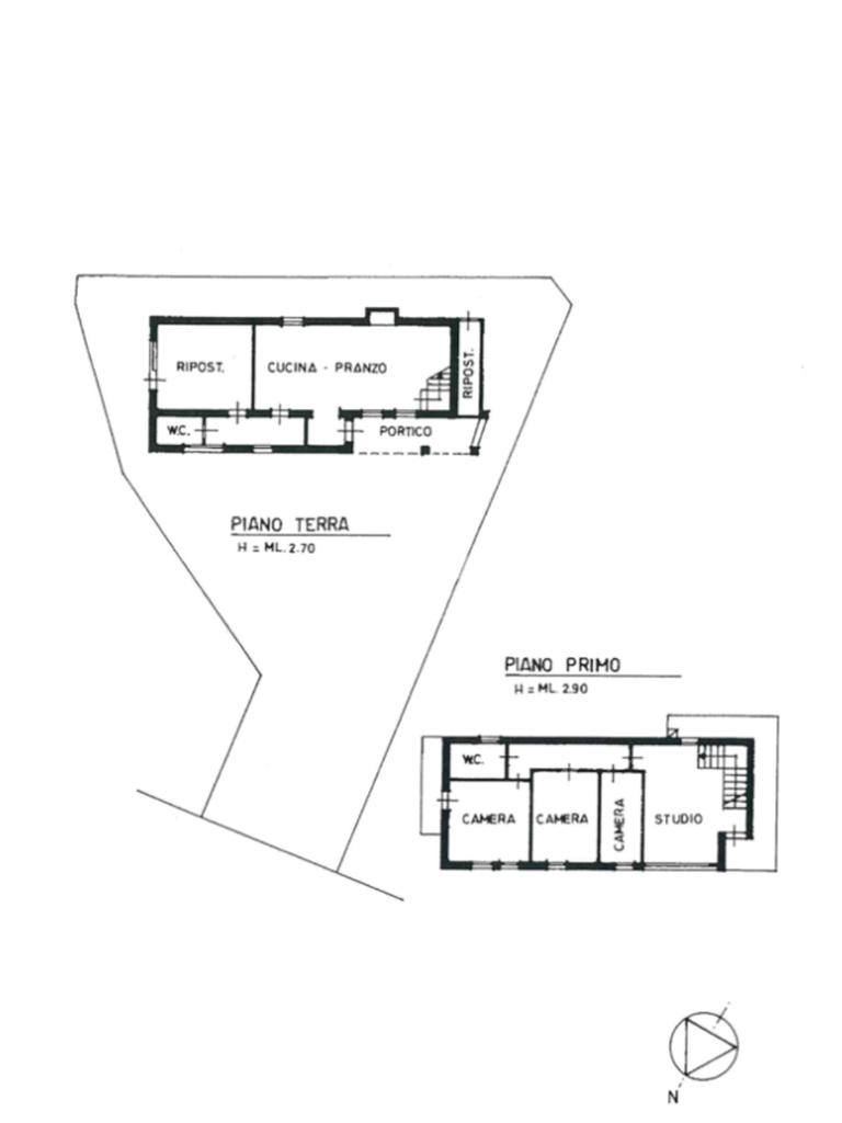
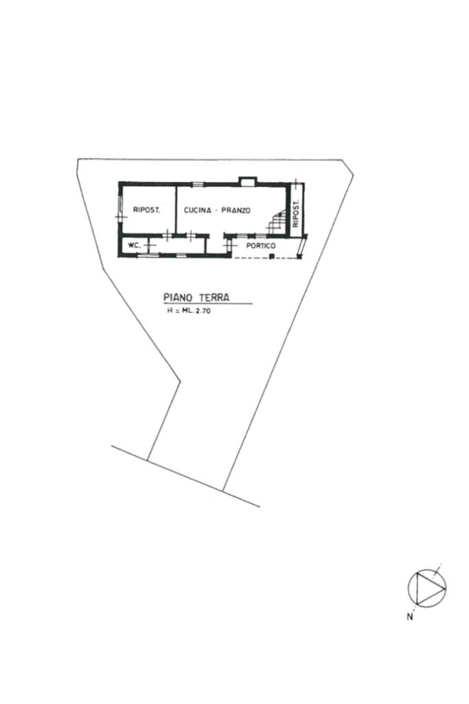
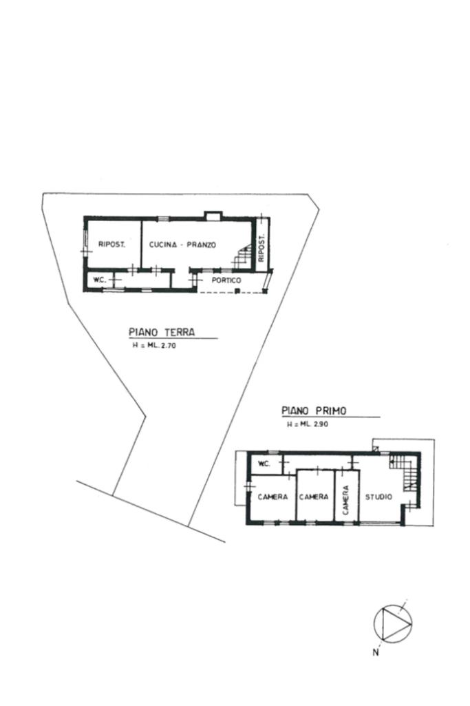
Nel cuore della zona di Levante a Caorle, in posizione centrale, una villa singola indipendente con giardino e spazio esterno privato a pochi passi dal mare.

La villa si sviluppa su due livelli: al piano terra l’ingresso conduce a un luminoso soggiorno open space con cucina abitabile, un ambiente accogliente e ben distribuito, perfetto per la vita quotidiana.
La zona giorno è resa ancora più calda e suggestiva dalla presenza del camino e della stufa a pellet.
Sullo stesso livello troviamo un bagno di servizio e due pratici ripostigli che garantiscono funzionalità e ordine.

Salendo al primo piano si sviluppa la zona notte, composta da due camere matrimoniali, di cui una con accesso diretto al terrazzo.
Completa il piano una ulteriore camera attualmente adibita a ripostiglio, facilmente adattabile ad altri utilizzi, oltre al bagno finestrato con doccia.

Un secondo terrazzo offre una piacevole vista sul giardino e sul portico frontale, creando un piacevole affaccio verde e riservato.
Inoltre, gli da un ulteriore valore lo studio al primo piano: un locale ampio e luminoso caratterizzato da delle finestre che permettono di godersi la luce naturale del giorno.

La casa è dotata di riscaldamento autonomo con radiatori e gode di ambienti luminosi.
All’esterno il giardino privato rappresenta un vero valore aggiunto: il portico e il gazebo permettono di vivere appieno gli spazi all’aperto, ideali per momenti di relax.

Una casa che non è solo da abitare, ma da vivere ogni giorno, una soluzione ideale per chi cerca indipendenza e comfort.
Un’oasi privata nel cuore di Caorle, pronta ad accogliere la tua nuova storia.

Mostra tutto

Nelle vicinanze

Trasporto pubblico Trasporto pubblico
Fermata Battello
2,6 Km
Trasporto pubblico
2,7 Km
Ricariche auto elettriche Ricariche auto elettriche
Caorle Moro | EnelX
460 m
Hotel Panoramic
910 m
Eco Park Citta di Caorle | EnelX
1,3 Km
Scuole Scuole
Isituto Comprensivo Morvillo Falcone
830 m
Istituto Alberghiero "Lepido Rocco"
850 m
Enrico Fermi
900 m
A. Palladio
970 m
Scuola Italiana Pizzaioli
1,3 Km
Farmacia Farmacia
Farmacia
650 m
Farmacia Dott. Borin
1,3 Km
Ospedali Ospedali
Pronto Soccorso Ospedale Caorle
680 m
Supermercati Supermercati
Tuttidi Market
370 m
Famila Superstore
450 m
Maxi Supermercati
730 m
Penny
1,0 Km
Coop
1,2 Km
Negozi Negozi
Panificio Schiavon
550 m
Negozi
560 m
Al Ponte
700 m
Paneficio
700 m
Gusso Il Fornaio
750 m
Bar Bar
Bar Sapore di Vino
540 m
Bistrot "Nessun Dorma"
610 m
Blues
910 m
Bar Doppio V
930 m
Bagni Conchiglia s. n. c.
960 m
Ristoranti Ristoranti
Nuova Caorle
300 m
Ristorante Pizzeria "Un Posto al Sole"
490 m
Porto Piccolo
510 m
Cicchetteria " Al Bateo "
520 m
iDon Caorle
540 m
Mostra tutto

Caratteristiche

Rif.:
61183919
Piano:
2 di 2 (Piano su più livelli)
Posti auto:
2
Terrazzi:
2
Camere da letto:
2
Arredamento:
Completo
Mostra tutto
Prezzo Prezzo
€ 960.000
Rata mutuo Rata mutuo
€ 4.549 / mese
Spese annue Spese annue
€ 0
Proponi il tuo prezzoProponi il tuo prezzo

Classe Energetica

F
F
F
F
F
F
F
F
F
EP globale non rinnovabile:
192.92 kW h/m² anno
EP globale rinnovabile:
2.14 kW h/m² anno
EP invernale del fabbricato:
EP estiva del fabbricato:
Anno di costruzione:
1982
Riscaldamento:
Autonomo
Tipo impianto:
A radiatori
Tipo alimentazione:
Metano

Ti interessa visionare l'immobile?

Fissa un appuntamento  Fissa un appuntamento

Richiedi informazioni

Clicca su Leggi per aprire l'informativa
* Questi campi sono obbligatori

Calcola il tuo mutuo

Semplice e senza impegno
Anticipo

( % )
Mutuo

( % )

pochi semplici passi

inserisci i tuoi dati
Questionario completato
Grazie per aver richiesto un appuntamento senza impegno con un nostro Consulente del Credito e Assicurativo.

Hai inserito correttamente tutti i dati necessari e a breve riceverai una e-mail con un link da convalidare per inviare i tuoi dati.
Affiliato
Living Srl
Via Riva dei Bragozzi, 1 30021 Caorle (VE)

Il nostro staff


  • Andrea Bertin
    Affiliato

  • Sara Braida
    Collaboratrice

  • Lisa Dalla Francesca
    Coordinatrice

  • Nazmie Anna Gjura
    Collaboratrice

  • Enrico Agostinetto
    Responsabile

  • Ferdinando Nuvoletta
    Responsabile
Via Riva dei Bragozzi, 1 30021 Caorle (VE)
Zona: Caorle
Mostra su mappa
Orari: Dal Martedì al Sabato 9.00 - 13.00 / 14.00 - 18.00 Domenica e Lunedì aperto solo su appuntamento
Affiliato
Living Srl
Via Riva dei Bragozzi, 1 30021 Caorle (VE)

2026 Tecnocasa Franchising S.p.A. - P. IVA 08365160152 - Via Monte Bianco 60/A 20089 Rozzano (MI). Ogni agenzia ha un proprio titolare ed è autonoma. Privacy policy | Policy utilizzo | Cookie policy