 
			Nel comune di Caorle, nella tranquilla località di Sansonessa, villa a schiera di testa a più livelli.
 
 L’ingresso principale conduce direttamente alla zona giorno, caratterizzata da soggiorno openspace con cucina abitabile; questo spazio è ben distribuito e luminoso grazie alle porte finestre che si affacciano sull'ampio giardino. 
 Sullo stesso livello è presente un bagno cieco e un comodo box auto, ideale per ospitare un’auto o altri mezzi di trasporto.
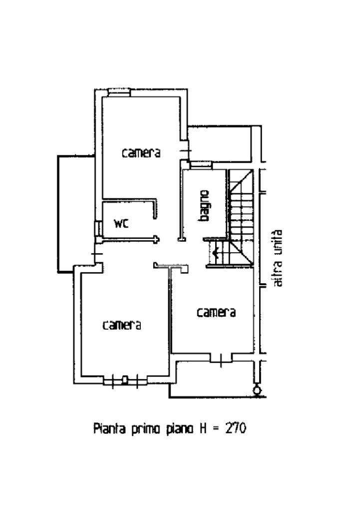
 Tramite delle scale interne si accede alle due camere matrimoniali ampie e anch'esse luminose e alla camera singola. 
 Ad ogni stanza, gli da un ulteriore valore, l'aggiunta del terrazzino privato con vista sul giardino: un ottimo spazio per passare dei momenti di tranquillità e relax. 
 A completare la zona notte ci sono due bagni finestrati, di cui uno si trova all'interno di una delle camere matrimoniali. 
 
 La villa è dotata di impianto di riscaldamento autonomo con predisposizione per radiatori, split con pompa di calore e una stufa a pellet attualmente funzionante.
 Questa soluzione abitativa è ideale per chi cerca una residenza spaziosa e ben organizzata in una zona tranquilla e ben servita, a pochi minuti dal centro di Caorle. 
Ti interessa visionare l'immobile?