Trilocale in vendita

Caorle, Viale Santa Margherita
€ 250.000
3 locali 3 locali
85 Mq 85 Mq
1 bagno 1 bagno

Trilocale in vendita

Caorle, Viale Santa Margherita

Descrizione annuncio

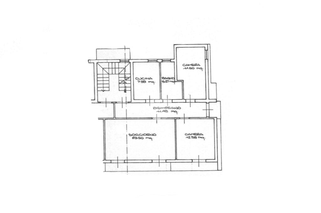
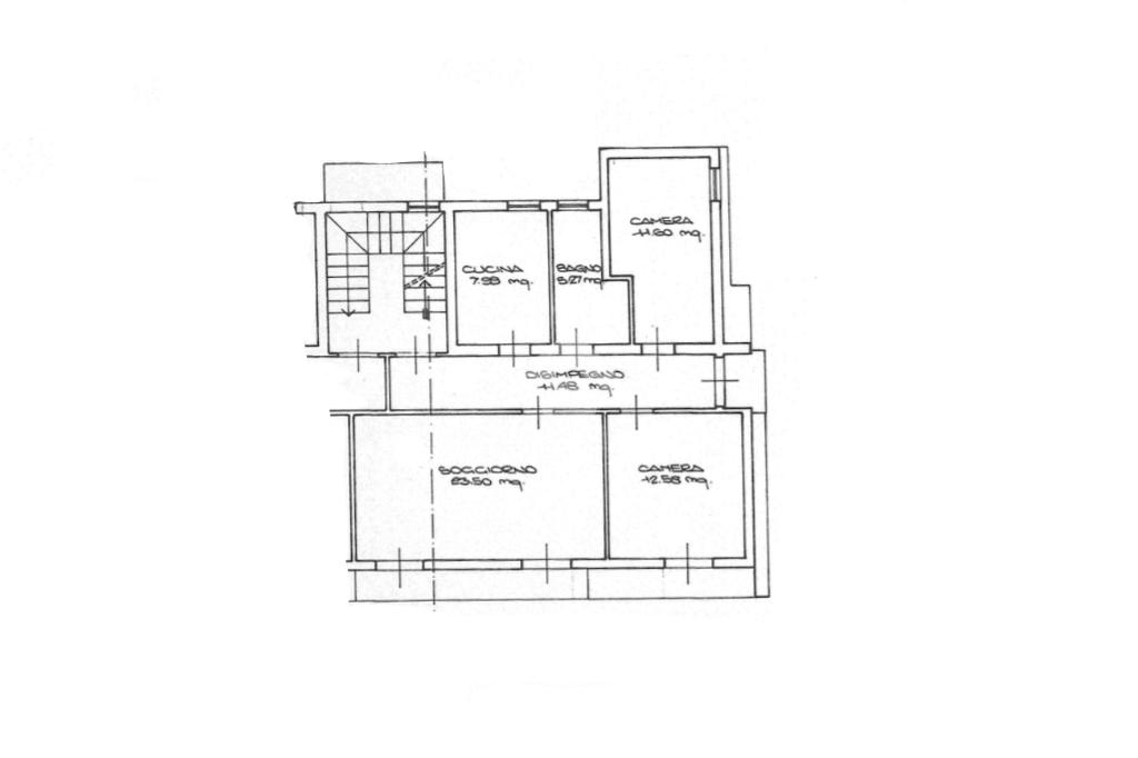
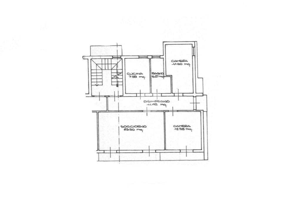
A Caorle, in zona ponente proponiamo in vendita un trilocale a soli due minuti in auto dal centro storico.

L'immobile si sviluppa su un unico livello: l’ingresso conduce al disimpegno che separa i vari ambienti della casa.
La zona giorno è composta da soggiorno con sala da pranzo e cucina separata, entrambi gli ambienti con accesso al balcone.

La zona notte comprende una camera matrimoniale, una camera singola e bagno finestrato dotato di vasca.
A completare la soluzione sono presenti tre balconi, che garantiscono una buona luminosità naturale.

Inoltre, è dotato di riscaldamento autonomo con radiatori, di split con pompa di calore e di un posto auto scoperto singolo in un'area comune.

Una soluzione ideale per chi desidera vivere Caorle con comodità, mantenendo la tranquillità della zona ponente.

Mostra tutto

Nelle vicinanze

Trasporto pubblico Trasporto pubblico
Trasporto pubblico
1,8 Km
ATVO to Caorle
ATVO to Caorle
1,8 Km
Fermata Battello
1,1 Km
Trasporto pubblico
1,2 Km
Ricariche auto elettriche Ricariche auto elettriche
Caorle Moro | EnelX
1,2 Km
Eco Park Citta di Caorle | EnelX
1,4 Km
Caorle Parcheggio Darsena Porto Santa Margherita | EnelX
1,9 Km
Hotel Panoramic
2,4 Km
Scuole Scuole
A. Palladio
560 m
Scuole
620 m
Enrico Fermi
630 m
Istituto Alberghiero "Lepido Rocco"
680 m
Isituto Comprensivo Morvillo Falcone
710 m
Farmacia Farmacia
Farmacia Dott. Borin
260 m
Farmacia
320 m
Ospedali Ospedali
Pronto Soccorso Ospedale Caorle
880 m
Supermercati Supermercati
Despar
240 m
Coop
380 m
iN's Mercato
740 m
Lidl
770 m
Maxi Supermercati
790 m
Negozi Negozi
Minimarket
640 m
Negozi
660 m
Panificio Pasticceria Elia
660 m
Paneficio
900 m
Gusso Il Fornaio
950 m
Bar Bar
Bar Doppio V
590 m
Bagni Conchiglia s. n. c.
680 m
Blues
770 m
Bistrot "Nessun Dorma"
1,1 Km
Bar Sapore di Vino
1,2 Km
Ristoranti Ristoranti
Ristorante Sporting
110 m
Pizzeria "La Gondola"
150 m
Ristorante-Pizzeria Azurro
170 m
TNT
280 m
Food Mami
380 m
Mostra tutto

Caratteristiche

Rif.:
61189792
Piano:
1 di 4 (Piano medio)
Posti auto:
1
Balconi:
3
Camere da letto:
2
Arredamento:
Completo
Mostra tutto
Prezzo Prezzo
€ 250.000
Rata mutuo Rata mutuo
€ 1.167 / mese
Spese annue Spese annue
€ 250
Proponi il tuo prezzoProponi il tuo prezzo

Classe Energetica

Questo immobile è esente da classe energetica
Anno di costruzione:
1960
Riscaldamento:
Autonomo
Tipo impianto:
A radiatori
Tipo alimentazione:
Metano

Ti interessa visionare l'immobile?

Fissa un appuntamento  Fissa un appuntamento

Richiedi informazioni

Clicca su Leggi per aprire l'informativa
* Questi campi sono obbligatori

Calcola il tuo mutuo

Semplice e senza impegno
Anticipo

( % )
Mutuo

( % )

pochi semplici passi

inserisci i tuoi dati
Questionario completato
Grazie per aver richiesto un appuntamento senza impegno con un nostro Consulente del Credito e Assicurativo.

Hai inserito correttamente tutti i dati necessari e a breve riceverai una e-mail con un link da convalidare per inviare i tuoi dati.
Affiliato
Living Srl
Via Riva dei Bragozzi, 1 30021 Caorle (VE)

Il nostro staff


  • Andrea Bertin
    Affiliato

  • Sara Braida
    Collaboratrice

  • Lisa Dalla Francesca
    Coordinatrice

  • Nazmie Anna Gjura
    Collaboratrice

  • Enrico Agostinetto
    Responsabile

  • Ferdinando Nuvoletta
    Responsabile
Via Riva dei Bragozzi, 1 30021 Caorle (VE)
Zona: Caorle
Mostra su mappa
Orari: Dal Martedì al Sabato 9.00 - 13.00 / 14.00 - 18.00 Domenica e Lunedì aperto solo su appuntamento
Affiliato
Living Srl
Via Riva dei Bragozzi, 1 30021 Caorle (VE)

2026 Tecnocasa Franchising S.p.A. - P. IVA 08365160152 - Via Monte Bianco 60/A 20089 Rozzano (MI). Ogni agenzia ha un proprio titolare ed è autonoma. Privacy policy | Policy utilizzo | Cookie policy