 
			 
				Località Duna Verde, a Caorle, accogliente appartamento ristrutturato a soli 400 metri dal mare. 
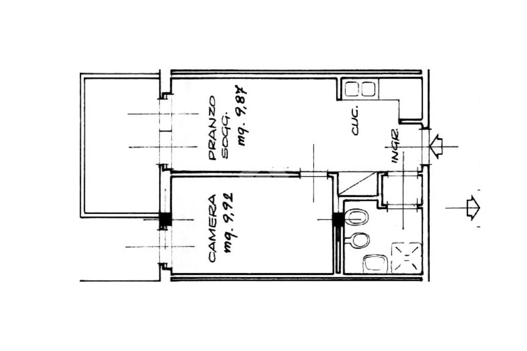
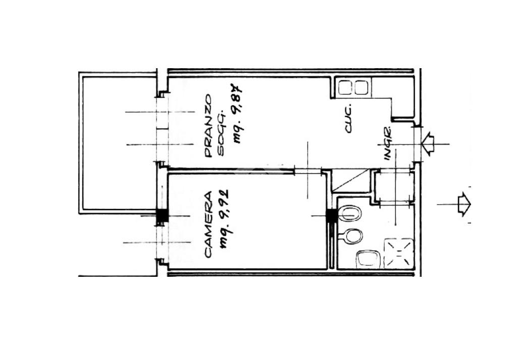
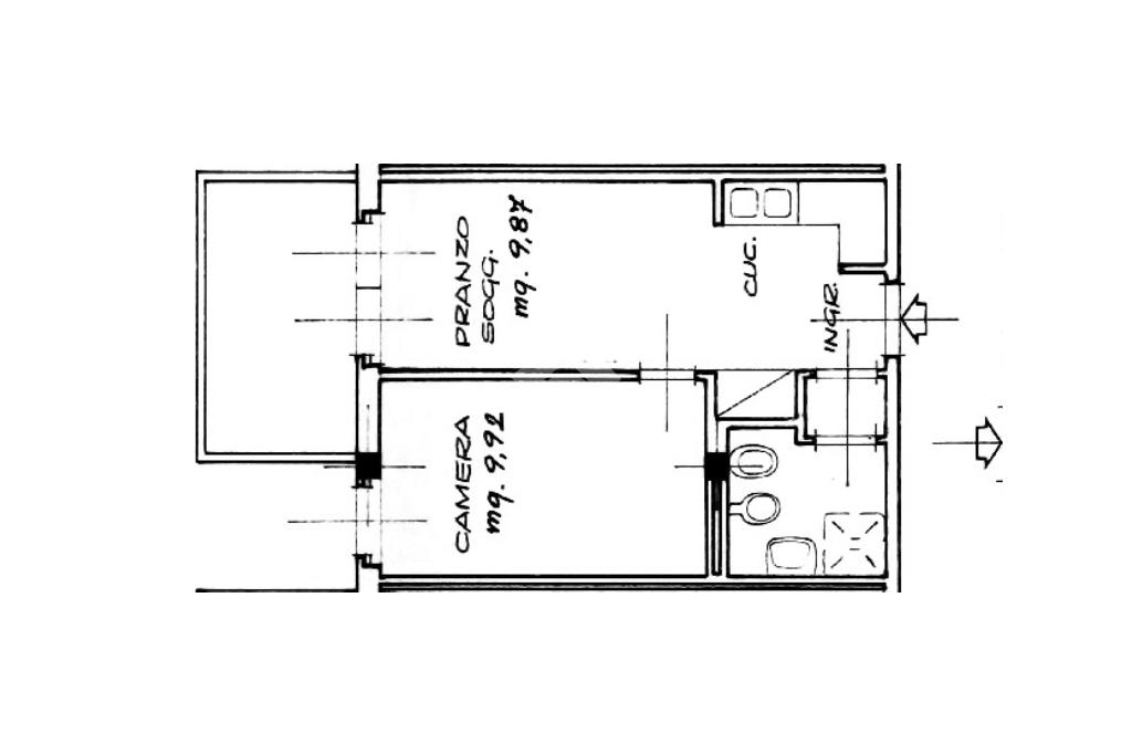
L'immobile è stato oggetto di ristrutturazione nel 2016 e offre due locali ben distribuiti e funzionali:  alla destra dell'ingresso troviamo la cucina e la zona giorno luminosa con accesso diretto sul terrazzo abitabile. 
La zona notte è composta da una camera da letto, confortevole e ben illuminata e un comodo bagno con box doccia.
 L'appartamento è dotato di aria condizionata con pompa di calore e di un posto auto in esclusiva. 
Inoltre, la proprietà ha la possibilità di usufruire dell'ascensore e della piscina condominiali.  
 Ottima soluzione abitativa che può essere utilizzata come casa principale che, come casa vacanze e le da un ulteriore valore la zona tranquilla e la vicinanza del mare a pochi passi dalla propria abitazione.   
Ti interessa visionare l'immobile?